Používame cookies

Súbory cookie a ďalšie technológie sledovania používame na zlepšenie vášho zážitku z prehliadania našich webových stránok, na to, aby sme vám zobrazovali prispôsobený obsah a cielené reklamy, na analýzu návštevnosti našich webových stránok a na pochopenie toho, odkiaľ naši návštevníci prichádzajú. Viac info

3-izbového bytu Bratislava III- Nové Mesto, Trnavská cesta

Interné ID: 260126
Ulica: Trnavská cesta
Obec: Bratislava-Nové Mesto
Okres: Bratislava III
Kraj: Bratislavský kraj
Druh: Byty
Typ: Predaj
Typ bytu: 3-izbový byt
345 000 €

Popis nehnuteľnosti

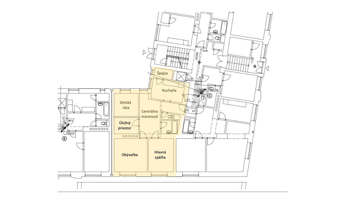
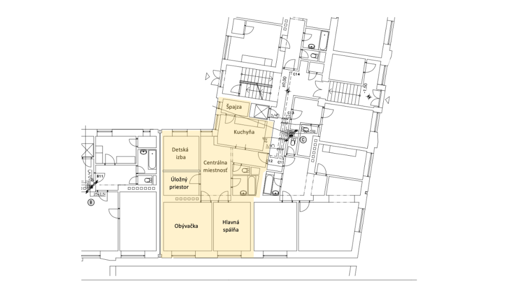
Ponúkame na predaj 3-izbový byt v Bratislave mč Nové Mesto na Trnavskej ulici
- byt o výmere 80m2, + budú sa dorábať balkóny,
- zvýšené prízemie, výťah,
- kompletná rekonštrukcia, 
- výborná dispozícia izby neprechodné,
- tehlová stavba,

Vlastnosti

Status:
aktívne
Vlastníctvo:
osobné
Úžitková plocha:
80 m2
Zastavaná plocha:
80 m2
Podlahová plocha:
80 m2
Stav:
úplne prerobený
Počet izieb:
3
Typ budovy:
tehla
Výťah:
áno
Pozícia:
vyvýšené prízemie
Poschodie:
1
Celková plocha:
80 m2

Informatívna úverová kalkulačka

Pozrieť na mape

Maklér

Augustín Hupka

Augustín Hupka

maklér

  • Slovensky
  • Česky
  • lrm
  • narks

Radi Vám poradíme